當前位置:首頁 > 提取濃縮設備> 產品中心> 提取罐 提取罐
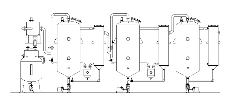
三效濃縮提取罐的應用:對進料時的料液分布與管內的流動我們采用先進的液體分布裝置,使物料能均勻分布在管內的流動我們采用先進的液體分布裝置,使物料能均勻地進入各加熱管,同時,濃縮罐廠家選用優良進口的內壁鏡面管作加熱管,使物料在管內的流動阻力小、速度快,酒精濃縮罐,不易析出結垢。為提高濃縮罐的收率,系統裝備先進的霧沫捕集器,消除霧沫夾帶的能力強,分離效率可達96-99%,而且阻力降小。三效濃縮提取罐適用于中藥、西藥、淀粉糖、食乳品等物料的濃縮,尤其適用于熱敏性物料的低溫真空濃縮罐。

三效濃縮提取罐示意圖
三效濃縮提取罐的特點
1、該設備外加熱循環,受熱時間短,適合于熱敏,多品種物料生產。
2、蒸發能力大,速度快。
3、它與單效濃縮器和雙效濃縮器相比,濃縮比重要大的多。
4、改善勞動條件,進行正常。
5、綜合利用:本設備用不銹鋼材料。
三效濃縮提取罐用于中藥、西藥、淀粉糖、食品等物料濃縮與工業有機溶劑(如酒精)的回收,用于批量、品種多的熱敏性物料的低溫真空外循環濃縮。